
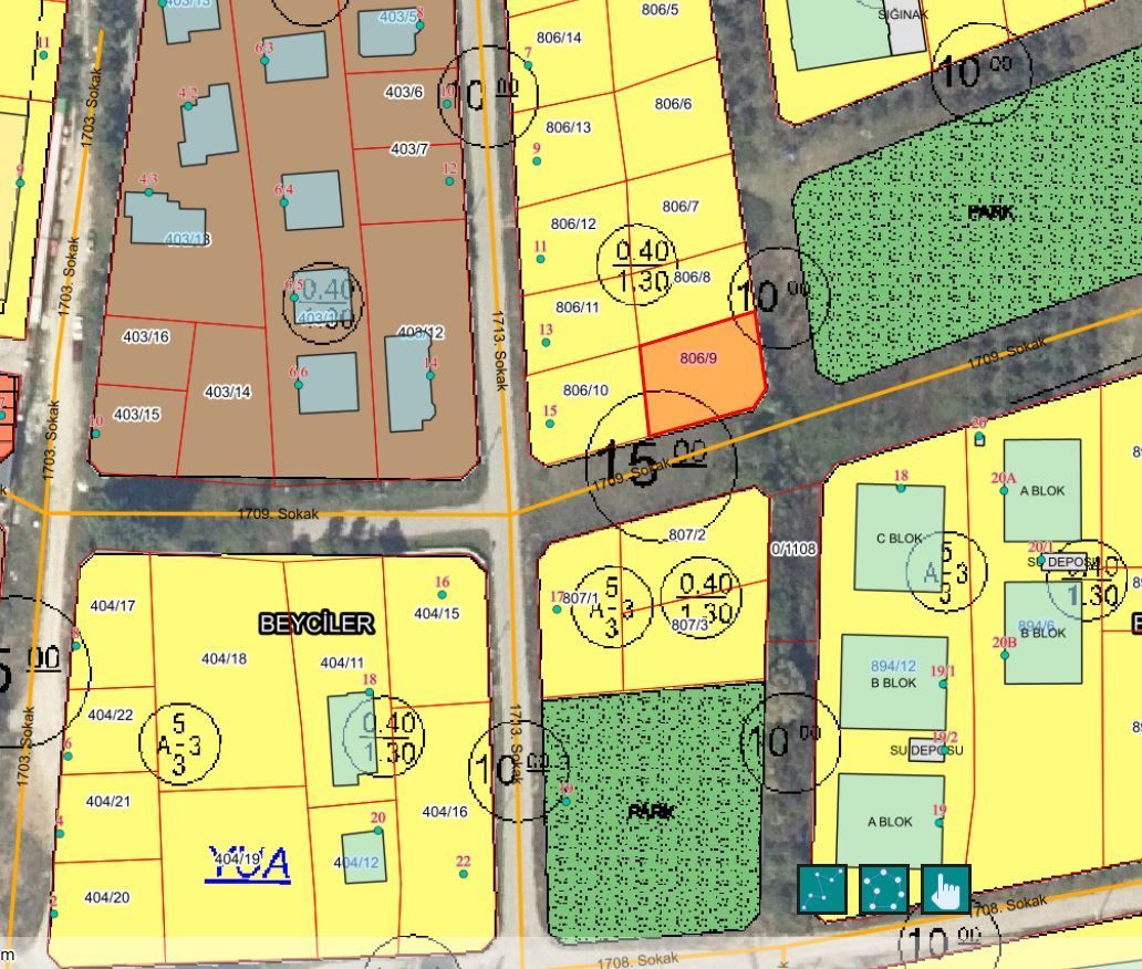
BEYCİLER MH.
ADA: 806 PARSEL: 9
3 KAT KONUT İMARLI
KÖŞE PARSEL
ÇARŞI MERKEZE 2.5 Kilometre Mesafede
DÜZCE ÜNİVERSİTESİNE 4.5 Kilometre Mesafede
YATIRIM DEĞERİ – BUGÜN AL, KAZAN!
✅ Hızla gelişen bir bölgede yer alıyor!
✅ Deniz, doğa ve turistik noktalara yakın!
✅ Otoyola yoluna yakın konumda olması,
Taşınmaz Ticaret Yetki Belgesi : 8100043
Bu satış süreci, ALTIN EMLAK DÜZCE TEMSİLCİLİĞİ tarafından her iki tarafın hakları korunarak, güvenilir ve profesyonel bir yaklaşımla yönetilecektir.