Cm Group İnvest | Zeytinlide 4+1 Müstakil Villa Yatırımı

  • Satılık
  • Villa

₺22.985.677

Açıklama

Balıkesir ili Erdek İlçesi, eski adı Yalı, yeni adı Zeytinli Mahallesi’nde,
940 Ada 13 Parsel ’de konumlu projeden müstakil villamız satıştadır.


 PROJE BİLGİLERİ
•    Arsa Alanı: 553,80 m²
•    Parsel: Zeytinli Mahallesi 940 Ada 13 Parsel
•    Proje: 2 adet ayrık nizam müstakil villa
•    İmar Durumu:
o    TAKS: 0,20
o    KAKS: 0,40
•    4+1 oda planı
•    Müstakil bahçeli & balkonlu
______________
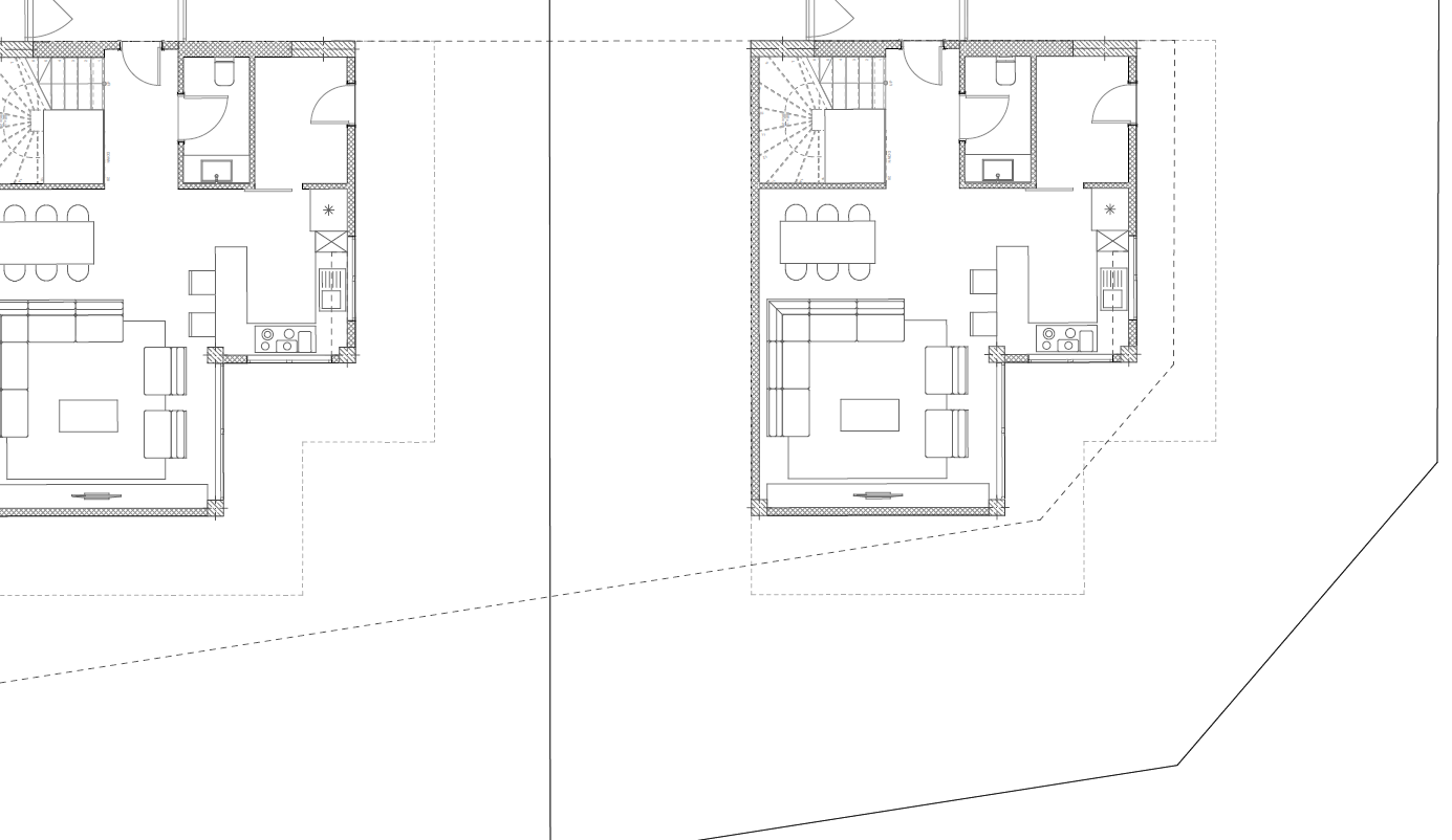
 ZEMİN KAT PLANI
•    Amerikan mutfak + salon: 41 m²
•    Kiler / depo alanı: 4 m²
•    WC: 3 m²
•    Veranda: 3,44 m²
•    Bahçeye açılan ferah ve kullanışlı yaşam alanı
______________
️ 1. KAT PLANI (4+1)
•    Ebeveyn yatak odası: 23,07 m²
•    Ebeveyn banyosu: 4,50 m²
•    Yatak odası: 12,15 m²
•    Yatak odası: 10,35 m²
•    Yatak odası: 9,14 m²
•    Banyo: 3,37 m²
•    Banyo: 2,68 m²
•    Koridor / hol: 4,20 m²
______________
 GENEL ÖZELLİKLER
✔ Her villanın kendine ait özel bahçesi bulunmaktadır
✔ Ayrık nizam – bağımsız ve ferah yaşam
✔ Geniş metrekareli 4+1 aile konsepti
✔ Modern mimari, dengeli oda dağılımı
✔ Hem oturumluk hem yüksek yatırım potansiyelli
______________

Villamız takas tekliflerine açık olup mantıklı teklifler değerlendirelecektir


 Detaylı bilgi, proje sunumu ve yerinde inceleme için iletişime geçiniz.

CM GROUP INVEST

LUXURY PROPERTIES

Gayrimenkul Yatırım Danışmanlığı

444 0 7 29 & 0532 066 92 10

  • Portföy Id466235
  • Portföy TipiSatılık
  • Kat Sayısı2
  • Bulunduğu KatDublex
  • Balkon Sayısı3
  • Kullanım DurumuBoş
  • Kullanım DurumuDubleks
  • Isıtma TipiYerden Isıtma
  • Yakıt TipiDoğalgaz
  • Brüt m²553
  • Net m²135
  • Oda Sayısı4+1
  • Banyo Sayısı4
  • Tuvalet Sayısı4
  • Bina Yaşı0
  • Yapım Yılı2026
  • Tapu DurumuArsa Tapusu
  • Güncelleme Tarihi 23.04.2026

Özellikler

İç Özellikler
Görüntülü Diyafon
Özel Dekorasyon
Balkon
Isıcam
Saten Alçı
Laminant Parke
Çelik Kapı
Isıcamlı Doğrama
Seramik Zemin
Karo Seramik
Özel Tasarım Mutfak
Mutfak Doğalgazı
Ebeveyn Banyo
WC
Duşakabin
Hilton Lavabo
Dış Özellikler
Isı Yalıtım
Ses Yalıtımı
Cephe
Batı
Doğu
Kuzey
Güney
Kuzeybatı
Kuzeydoğu
Güneybatı
Güneydoğu
Ön Cephe
Arka Cephe
Manzara
Deniz
Doğa
Şehir
Çevre Özellikleri
Denize Yakın
Eğlence Merkezi
Semt Pazarı
Restoran
Doğa İçinde
SPA
Ulaşım
Anayol
Caddeye yakın
Dolmuş
Otobüs Durağı
Sahil
Toplu taşımaya yakın

Konum

Danışmana Ait Diğer Portföyler

Tümünü Gör
Property-photo
Konut
Satılık
Property-photo
Konut
Satılık
Property-photo
Arsa
Satılık
Cm Group Invest-Düzlerde İçinde Ev Olan Denize Yak...
  • Brüt: 850 m²
  • Net: 850 m²
₺8.500.000 Detay
Property-photo
Arsa
Satılık
Erdek Çayağzı Mahallesinde Ceviz İşletim Tesisi Ku...
  • Brüt: 32.125 m²
  • Net: 32.125 m²
₺44.000.000 Detay